https://static.vl.ru/news/1574922760176_default

Newsvlru

С чего начать капитальный ремонт квартиры: советы экспертов и лайфхаки — в обзоре VL.ru

Зима – лучшее время для ремонта во Владивостоке. Влажность меньше, согретый радиаторами воздух заставляет стройматериалы сохнуть быстрее. Специально для тех, у кого в списке дел на холодное время года фигурирует ремонт в квартире, VL.ru подготовил обзор с советами экспертов, с чего начать, к каким тратам готовиться и как выбрать подрядчиков.

Создание дизайн-проекта

Чтобы понять, какой объем работы предстоит при капитальном ремонте, мало обойти квартиру по периметру и прикинуть, где заменить обои или снести стену. Лучше воспользоваться услугами профессионалов.

Первым, кого следует пригласить в дом, – дизайнера. Он сделает замеры и выслушает пожелания, составит эскизы интерьеров в разной стилистике и распишет, какие потребуются материалы и подрядчики. По итогу его работы заказчик получит полностью разработанный дизайн-проект, на основании которого будет производиться ремонт.

Дизайн-проект – это комплект документов и материалов, характеризующих все отделочные решения по дизайну офиса, дома, квартиры или отдельной комнаты. Прописывается все, начиная с плана возведения новых перегородок и заканчивая схемой подбора цветов для стен и мебели. Дизайн-проект может быть выполнен в любом стиле от классики до модерна и включает в себя несколько разделов, каждый из которых несет свою смысловую нагрузку. В целом, дизайн-проект является прописанной концепцией дизайна для конкретного объекта.

https://static.vl.ru/news/1574923062522_default

Проектная документация сильно отличается от эскиза интерьера, который можно сделать самостоятельно, на бумаге или в бесплатной компьютерной программе.

Проекты должны соответствовать нормам, законам и правилам в строительстве, ошибки стоят больших денег и могут обернуться штрафами. Горе-дизайнер способен «снести» несущие стены, перепутать замеры, передвинуть «влажные» помещения туда, где им не место, нарушив закон.

«Чтобы учесть все необходимые требования при составлении дизайн-проекта, мы пользуемся специальными программами с BIM-технологиями, – рассказывает Сергей Маланчук, директор дизайн-студии «Артель-ДВ». – Они позволяют анализировать свет, проектировать инженерные сети (электричество, водопровод, канализацию и т. д.), формировать ведомости материалов и оборудования – с наименованиями, ценами, местами продажи и ссылками на сайты компаний-продавцов. Если появляются исправления в дизайн-проекте, то все изменения мгновенно подсчитываются, что позволяет избежать ошибок при дальнейшей работе. Программа помогает избежать ненужных финансовых затрат и потери нервных клеток».

https://static.vl.ru/news/1574923059628_default

На сайте FarPost средняя стоимость дизайн-проекта – от 1 тысячи до 2 тысяч рублей за кв. м. Чаще всего цена зависит от общей площади помещений – чем она больше, тем «квадрат» обходится дешевле.

На стоимость влияет содержание дизайн-проекта:

- некоторым заказчикам достаточно рабочей документации для отделочников – вся концепция у них в голове, материалы и мебель они подбирают сами;

- для других важно и визуальное решение, и подбор материалов и оборудования, ремонт они уже проводят своими руками;

- для кого-то достаточно планировочного решения с расстановкой мебели.

В хороших дизайн-проектах информация по объекту отражается максимально полно в графической форме, в форме аннотаций и пояснительных записок. Но чтобы быть на 100% уверенным, что результат будет таким, как и на картинке, стоит воспользоваться услугами авторского надзора. Это контроль воплощения проекта в реальный объект – дизайнер консультирует строителей-отделочников и акцентирует их внимание на важных моментах.

Строители рассказывают, что еще пять лет назад редко какой заказчик заказывал дизайн-проект. Теперь практически все, кто затевает капитальный ремонт, выбирают довериться профессионалам.

Выбор исполнителей

В разделе «Ремонт квартир во Владивостоке» на портале FarPost 543 предложения от строителей. Здесь есть и частные мастера, и официальные строительные компании. Можно посмотреть фотографии работ, уточнить стоимость отдельных видов работ и ремонта под ключ.

Чтобы выбрать подрядчика, этого мало, но может стать первым этапом отбора. Затем рекомендуется поочередно пригласить несколько предполагаемых строительных бригад и выслушать их предложения, посмотреть составленные ими сметы. Специалисты проведут осмотр, сделают замеры и обследуют инженерное оборудование, чтобы выявить дефекты и предложить решения. Они расскажут, какие потребуются материалы, в какие этапы пройдет ремонт, предоставят сметы со сроками и предстоящими тратами.

https://static.vl.ru/news/1574923067601_default

Бригадиры знают, что такие тендеры популярны, поэтому не станут завышать или занижать цены, а постараются предложить максимально выгодный для обеих сторон вариант. Не самый дешевый, но самый выгодный. Тому, кто не разбирается в вопросах ремонта, будет не легко оценить представленные сметы.

«Выбрать хорошую строительную бригаду не так просто, – рассказывает Владимир Субботин, директор строительной компании "Комфорт-Владивосток". – Во-первых, лучше делать ремонт с теми, кого порекомендовали друзья или друзья друзей. Во-вторых, лучше не полениться и выехать на несколько объектов бригады, с которой собираетесь работать – посмотреть результаты предыдущих работ, особенно электрику и сантехнику, узнать у тех клиентов, оправдались ли ожидания, совпали ли цены в начале и в конце работы, соблюдались ли сроки, были ли гарантийные случаи. Это самый простой способ принять решение, мы постоянно возим своих будущих заказчиков к предыдущим».

Также Владимир рассказал, что следует внимательно читать договор, в котором указаны стоимость, сроки и гарантийные случаи. И добавил, что очень важно просматривать разные сайты в поисках отзывов о подрядчиках.

Финансовый вопрос

Стоимость ремонта зависит от многих факторов – какое исходное состояние помещений, какой нужен результат, какие материалы планируется использовать. Во Владивостоке ремонт обходится заказчику от 8 до 15 тысяч рублей за кв. м, в среднем – 12-13 тысяч рублей за «квадрат».

При этом представленные во время «тендера» сметы строительных бригад часто содержат не все статьи расходов. К примеру, если подрядчик недобросовестный, он не включает некоторые работы, и в итоге стоимость вырастает в два раза. Либо действительно появляются незапланированные доработки. А еще на итог влияет стоимость стройматериалов, которую нельзя точно указать, например, краска или ламинат есть в разных ценовых категориях.

Купить материалы удобнее всего в строительном гипермаркете. К примеру, в магазине «Помощник» можно найти и стройматериалы, и сантехнику, и напольные покрытия. Все в одном месте, и не нужно ехать куда-то за город. Опытные продавцы-консультанты помогут рассчитать нужное количество материалов каждому, кто придет за покупкой.

https://static.vl.ru/news/1574923055744_default

«На сегодняшний день заказчики чаще сами покупают стройматериалы, даже если нанимают для работ бригаду строителей, – рассказывает Антон Копылов, директор магазина "Помощник" на Выселковой. – Так легче контролировать расход материалов и объем выполненных работ. Кроме того, сейчас во многих строительных магазинах есть бонусы и другие акции, благодаря которым можно прилично сэкономить. Например, в "Помощнике" доставка стройматериалов в новостройки города осуществляется бесплатно».

Редко кому удается уложиться в бюджет копейка в копейку и закончить ремонт в обозначенный на первой же встрече день. Бригадиры говорят, что без дополнительных работ не обходится ни один объект: к примеру, вскрывают стену, а там грибок, или где-то труба в перекрытии потекла, нужно менять. Эти «сюрпризы» нельзя увидеть в момент заключения договора, но к ним нужно быть готовым и позаботиться о финансовой «подушке безопасности».

Если планируются «грязные» работы, возможно, стоит рассмотреть вариант аренды другого жилья на время ремонта. Это тоже дополнительные траты.

Вывоз мусора порядочные строители считают своей «святой» обязанностью. Если этого пункта нет в смете, стоит сразу обговорить с бригадиром. Возможно, придется решать вопрос самостоятельно. Но и если есть, нужно быть внимательным – горе-строители могут складировать мусор возле мусоропровода или в неположенных местах во дворе, а жильцам затем приходят штрафы.

В список расходов надо записать и уборку, а еще во время ремонта предстоит защищать пленкой отремонтированные комнаты от строительной грязи, пыли, штукатурки, краски, случайных повреждений. Впрочем, большинство бригад берут это на себя.

Общие лайфхаки и тренды

Опытные специалисты рекомендуют начинать ремонт с комнат, наиболее отдаленных от входной двери. Так по квартире будут меньше разноситься пыль и грязь, а стройматериалы в руках грузчиков не повредят уже отделанные стены и пол.

Чтобы сделать ремонт, многие планируют отпуск, собираясь потратить его на контролирование процессов. Какое-то время в любом случае придется потратить на поиск подрядчиков, но после этого профессионалы рекомендуют все-таки отправиться на отдых. Бригадир по запросу пришлет фото- и видеоотчеты о ходе работ. Или можно доверить контроль дизайнеру, воспользовавшись услугой авторского надзора.

Косметический ремонт своими силами сделать не так уж и сложно. Наклеить обои и покрасить стены можно самостоятельно, заручившись поддержкой опытных друзей или изучив вопрос самостоятельно.

Информация от дизайн-студии «Артель-ДВ», ООО «Комфорт-Владивосток» и магазина «Помощник» предоставлена на коммерческой основе.


Самое важное в Telegram-канале Новостей VL.ru Подписывайтесь на Новости VL.ru в Instagram Рубрика: Владивосток
Источник — VL.ru

https://static.vl.ru/news/1574923062522_default
Дизайн-проект – гостиная
https://static.vl.ru/news/1574923064959_default
Дизайн-проект – гостиная
https://static.vl.ru/news/1574923066528_default
Дизайн-проект – спальня
https://static.vl.ru/news/1574923059628_default
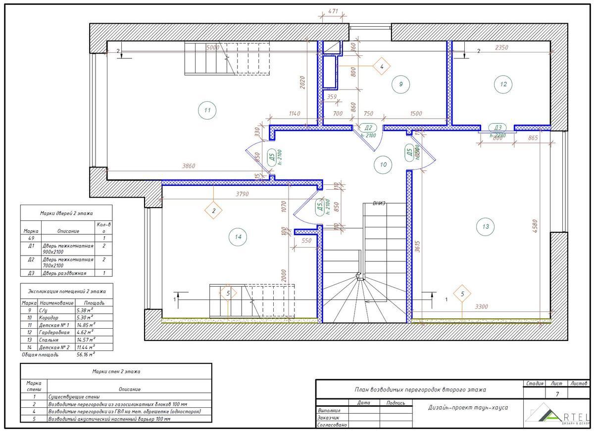
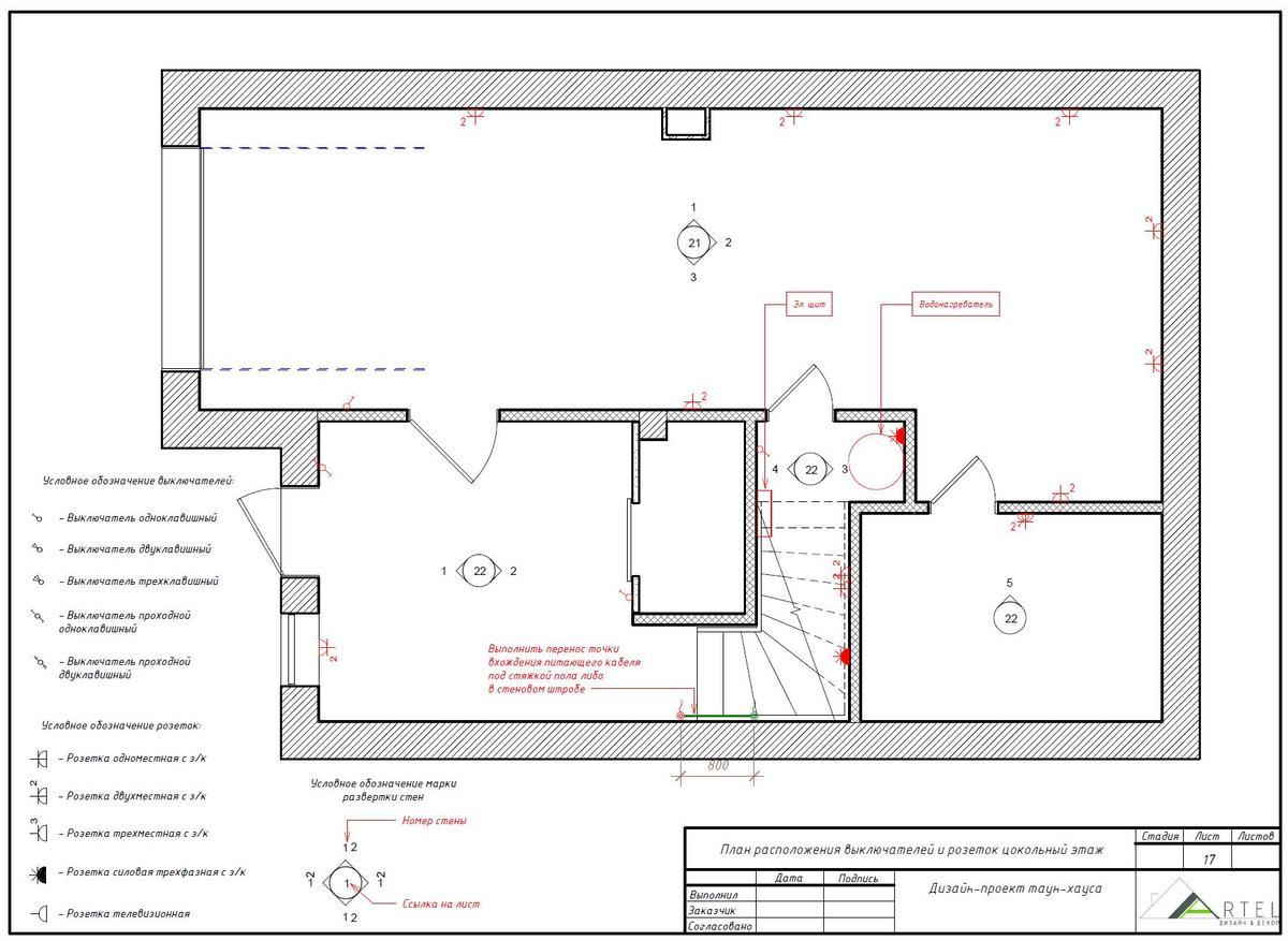
Фрагмент проектной документации
https://static.vl.ru/news/1574923072857_default
Фрагмент проектной документации
https://static.vl.ru/news/1574923073937_default
Фрагмент проектной документации
https://static.vl.ru/news/1574923075051_default
Фрагмент проектной документации
https://static.vl.ru/news/1574923076171_default
Фрагмент проектной документации
https://static.vl.ru/news/1574923077303_default
Фрагмент проектной документации
https://static.vl.ru/news/1574923071736_default
Фрагмент проектной документации
https://static.vl.ru/news/1574923078459_default
Фрагмент проектной документации
https://static.vl.ru/news/1574923079516_default
Фрагмент проектной документации
https://static.vl.ru/news/1574923067601_default
Пример сметы от ООО "Комфорт-Владивосток"
https://static.vl.ru/news/1574923068529_default
Пример сметы от ООО "Комфорт-Владивосток"
https://static.vl.ru/news/1574923055744_default
Строительный магазин "Помощник"
https://static.vl.ru/news/1574923069558_default
Строительный магазин "Помощник"
https://static.vl.ru/news/1574923070659_default
Строительный магазин "Помощник"